Francuska Office Centre B - Biuro
Informacje / oferta
| Budynek: | Francuska Office Centre B |
| Numer: | 76514/3105/OLW |
| Powierzchnia: | 1616.00 m2 |
| Czynsz za mkw: | 12.50 EUR / m² |
| Oplata eksploatacyjna: | 5.50 EUR / m² |
| Dostępne powierzchnie: | 1616.00 - 1616.00 |
Standard budynku
Opis
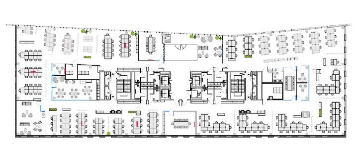
Budynek B wchodzący w skład kompleksu biurowego oferuje ponad 10 000 metrów kwadratowych nowoczesnej powierzchni biurowej na wynajem, a także 370 podziemnych miejsc parkingowych. Wysokiej jakości elementy wykończeniowe, w tym przeszkolona elewacja, zapewniają prestiżowy wygląd inwestycji oraz dostęp naturalnego światła. Typowa powierzchnia piętra budynku wynosi 1 618 metrów kwadratowych. Powierzchnia biurowa kompleksu wyposażona została w klimatyzację, podwieszane sufity, nowoczesne systemy zarządzania budynkiem i telekomunikacyjne, profesjonalną ochronę, wykładziny podłogowe oraz uchylne okna.
OCEŃ
5/5 (1)
LOKALIZACJA







