Centrum Biurowe Krucza - Biuro Śródmieście
Informacje / oferta
| Budynek: | Centrum Biurowe Krucza |
| Numer: | 143194/3105/OLW |
| Powierzchnia: | 521.83 m2 |
| Czynsz za mkw: | 50.00 PLN / m² |
| Oplata eksploatacyjna: | 30.00 PLN / m² |
| Dostępne powierzchnie: | 521.83 - 521.83 |
Standard budynku
Opis
Do wynajęcia powierzchnia zaaranżowana w układzie gabinetowym dostępna od zaraz w budynku biurowym - Centrum Biurowe Krucza. Lokal w pełni przystosowany do prowadzenia działalności biurowej. W okolicy znajdują się liczne sklepy, kawiarnie, restauracje. Budynek jest bardzo dobrze skomunikowany: liczne autobusy, tramwaje oraz stacja metra.
Standard techniczny:
-klimatyzacja
- podwieszane sufity
- recepcja, ochrona
- światłowód
- kontrola dostępu
Możliwość rozmowy o większych bądź mniejszych modułach nawet 900 metrów na jednej kondygnacji. W budynku istnieje możliwość wynajęcia również powierzchni magazynowej.
Warunki finansowe:
- czynsz najmu: 50,00 PLN/ m kw.
- opłaty eksploatacyjne: 30,00 PLN/ m kw.
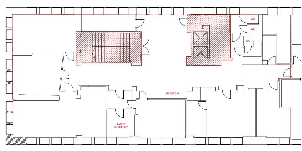
Zdjęcia przedstawiają obecny stan części wspólnych oraz przykładowy plan powierzchni. Zachęcamy do kontaktu z naszym biurem.
OCEŃ
5/5 (1)
LOKALIZACJA









