G.O. Center - Biuro
Informacje / oferta
| Budynek: | G.O. Center |
| Numer: | 71171/3105/OLW |
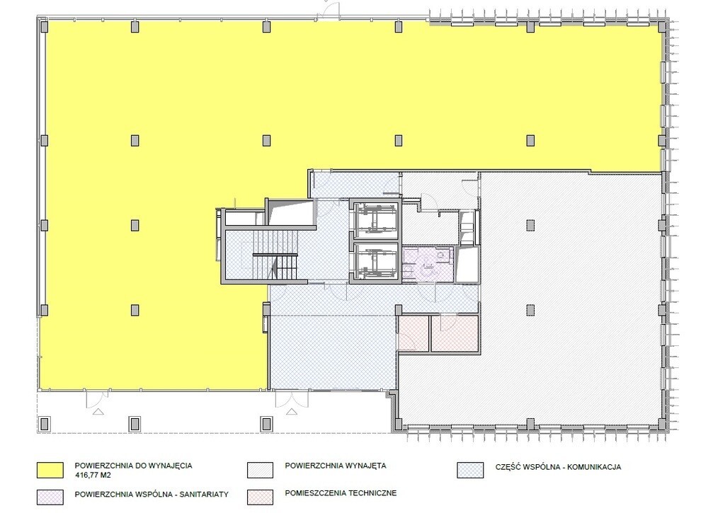
| Powierzchnia: | 702.00 m2 |
| Czynsz za mkw: | 12.50 EUR / m² |
| Oplata eksploatacyjna: | 14.50 PLN / m² |
| Dostępne powierzchnie: | 702.00 - 702.00 |
Standard budynku
Opis
Nowoczesny budynek klasy A oddaje do dyspozycji najemców ponad 6000 mkw. powierzchni biurowej. Biurowiec oferuje powierzchnię w bardzo wysokim standardzie o czym świadczy między innymi certyfikat BREEAM oraz bogate wyposażenie budynku. Ponadto do dyspozycji najemców zostanie oddany parking zarówno podziemny jak i naziemny. Sąsiedztwo licznych usług, tereny zielone na dachu budynku oraz w jego sąsiedztwie zapewniają komfortowe warunki pracy. Budynek znajduje się w pobliżu jednej z najważniejszych arterii komunikacyjnych miasta (ul. Kamieńskiego), dzięki czemu dojazd do innych części miasta nie będzie stanowił problemu.
OCEŃ
5/5 (1)
LOKALIZACJA






